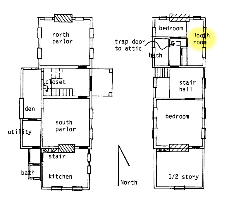
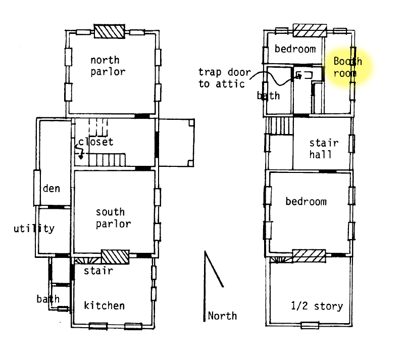
Horsehead Floorplan

Floor plan of the Horsehead Tavern. Notice the highlighted “Booth Room” where John Wilkes Booth is said to have stayed the night in the fall of 1864.
Image Source: Maryland Historical Trust

Leave a comment

This site uses Akismet to reduce spam. Learn how your comment data is processed.

Blog at WordPress.com.